Back to search

Vilniaus m. sav., Mažieji Gulbinai, Draustinio g.

House for sale

Vilniaus m. sav., Mažieji Gulbinai, Draustinio g.

House for sale

245 000
2 481 per m²

About this property

Vilnius district, Mažieji Gulbinai, Draustinio St. – for sale: a 1-storey, 99 sq. m, A++ energy class semi-detached house in the project “Draustinio Namai” (completion – Q4 2026).

Located in a calm, greenery-surrounded area next to Verkių Regional Park, this cosy development of only 8 homes offers a spacious and functionally designed house for a family.

Only 14 km to Vilnius Cathedral, 800 m to Lake Gulbinas and 2 km to the Green Lakes beach – a perfect balance between city convenience and forest tranquillity.

HOUSE INFORMATION:
• 1-storey semi-detached timber-frame house
• Energy class: A++
• Planned construction period: beginning of Q3 2026 – end of Q4 2026
• Total area: 99 sq. m
• Ceiling height: up to 4.7 m
• Plot: 5 ares
• Number of rooms: 4
• Bedrooms: 2–3
• Bathrooms: 1

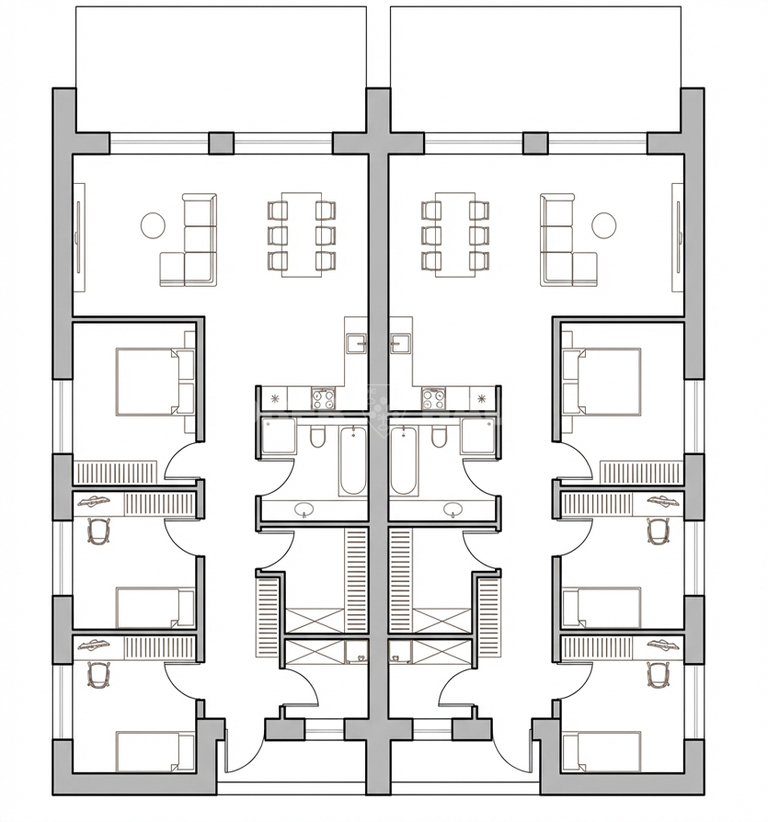
GROUND FLOOR LAYOUT:
• Living room with kitchen area – 37.17 sq. m
• Bedroom – 12.09 sq. m
• Room 1 – 10.23 sq. m
• Room 2 – 10.23 sq. m
• Bathroom – 6.75 sq. m
• Entrance hall/corridor – 12.29 sq. m
• Walk-in wardrobe – 6.0 sq. m
• Technical room – 3.99 sq. m

The spacious living room with panoramic windows and direct access to a private terrace creates a bright and cosy shared family space.

TECHNICAL SOLUTIONS:
• Air-to-water heating system
• Underfloor heating throughout the house
• Triple-glazed plastic windows
• Local water supply and local wastewater system

ARCHITECTURE AND QUALITY:
• Thermally treated wood façade at the front and rear
• Ceramic tiles (roof and side walls)
• Preserved mature pine trees on the plot
• Low-density, carefully planned residential environment

TERRITORY:
• Fenced area
• Landscaped surroundings, lawn installed
• Private terrace
• 2 parking spaces next to the house
• Street and façade lighting
• 200 m to the asphalt road, bus stop about 10 minutes on foot

This is a home for a family that values space, privacy and life surrounded by nature – you will start your mornings with birdsong and spend your evenings on your terrace next to Verkių Regional Park.

The project is developed by Monamo statyba – a company with more than 10 years of experience, building modern timber-frame houses since 2016. A clear process and quality are ensured from the first step to the key handover.

We invite you to contact us and arrange a viewing at your convenience.

Similar objects

All objects All
+
Mandatory
Mandatory cookies help make a website usable by enabling basic functions like page navigation and access to secure areas of the website. The website cannot function properly without these cookies.
Functional
Functional cookies enable a website to remember information that changes the way the website behaves or looks, like your preferred language or the region that you are in. Functional cookies are currently unused.
Statistical
Statistical cookies help website owners to understand how visitors interact with websites by collecting and reporting information anonymously. Statistical cookies are currently unused.
Advertising
Marketing cookies are used to track visitors across websites. The intention is to display ads that are relevant and engaging for the individual user and thereby more valuable for publishers and third party advertisers.
Allow all Deny All

Mail sent!