Back to search

Vilniaus m. sav., Mažieji Gulbinai, Draustinio g.

House for sale

Vilniaus m. sav., Mažieji Gulbinai, Draustinio g.

House for sale

370 000
2 779 per m²

About this property

Vilnius district, Mažieji Gulbinai, Draustinio St. – for sale: a 2-storey, 133 sq.m A++ energy class semi-detached house in the project “Draustinio namai” (completion – end of Q2 2026).

Located in a calm, greenery-surrounded area next to Verkių Regional Park, this cosy development of only 8 homes offers a spacious and functionally designed house for a family.

Just 14 km to Vilnius Cathedral, 800 m to Lake Gulbinas and 2 km to the Green Lakes beach – a perfect balance between city convenience and forest tranquility.

HOUSE INFORMATION:
• 2-storey semi-detached timber-frame house
• Energy class: A++
• Construction completion: end of Q2 2026
• Total area: 133 sq.m
• Plot: 5 ares (500 sq.m)
• Number of rooms: 5
• Bedrooms: 3
• Bathrooms: 3
• Additional room: home office

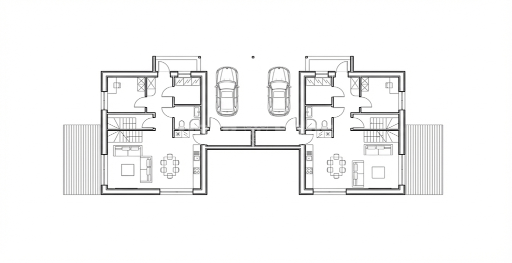
GROUND FLOOR LAYOUT:
• Living room with kitchen area – 34.3 sq.m
• Bathroom – 4.20 sq.m
• Entrance hall – 8.48 sq.m
• Study – 9.15 sq.m
• Storage room – 4.7 sq.m
• Storage room – 4.61 sq.m

The spacious living room with panoramic windows and direct access to a private terrace creates a bright and welcoming family space.

FIRST FLOOR LAYOUT:
• Corridor – 5.33 sq.m
• Children’s bedroom 1 – 14.14 sq.m
• Children’s bedroom 2 – 14.14 sq.m
• Children’s bathroom – 5.57 sq.m
• Master bedroom – 12.23 sq.m
• Walk-in wardrobe – 5.15 sq.m
• Master bathroom – 6.21 sq.m

Comfortable U-shaped stairs connect both floors. The house is connected to the neighbouring unit through a carport, ensuring greater privacy and reduced noise.

TECHNICAL FEATURES:
• Air-to-water heating system
• Underfloor heating throughout the house
• Triple-glazed plastic windows
• Local water supply and local wastewater system

ARCHITECTURE AND QUALITY:
• Thermo wood façade finishing at the front and rear
• Ceramic roof tiles (roof and side walls)
• Preserved mature pine trees on the plot
• Low-density, carefully planned residential environment

TERRITORY:
• Fenced area
• Landscaped surroundings with lawn
• Private terrace
• Carport for one car and 2 additional parking spaces
• Street and façade lighting
• 200 m to paved road, bus stop – approx. 10 minutes on foot

This is a home for a family that values space, privacy and life surrounded by nature – you will start your mornings with birdsong and spend your evenings on your private terrace next to Verkių Regional Park.

The project is developed by Monamo statyba – a company with more than 10 years of experience, building modern timber-frame homes since 2016. A clear process and quality are ensured from the first step to the handover of the keys.

Contact us to arrange a viewing at your convenience.

Similar objects

All objects All
+
Mandatory
Mandatory cookies help make a website usable by enabling basic functions like page navigation and access to secure areas of the website. The website cannot function properly without these cookies.
Functional
Functional cookies enable a website to remember information that changes the way the website behaves or looks, like your preferred language or the region that you are in. Functional cookies are currently unused.
Statistical
Statistical cookies help website owners to understand how visitors interact with websites by collecting and reporting information anonymously. Statistical cookies are currently unused.
Advertising
Marketing cookies are used to track visitors across websites. The intention is to display ads that are relevant and engaging for the individual user and thereby more valuable for publishers and third party advertisers.
Allow all Deny All

Mail sent!