Atgal į paiešką

Šiaulių m. sav., Lieporiai, Jotvingių g.

Parduodamas namas

Šiaulių m. sav., Lieporiai, Jotvingių g.

Parduodamas namas

157 000
1 366 už m²
  • Objekto tipas
    Parduodamas namas
  • Visas plotas
    114.91 m²
  • Sklypas
    4.80 a
  • Kambarių
    4
  • Statybos metai
    2026
  • Šildymo tipas
    Elektra
  • Nuoroda

Apie šį turtą

Pradėtos trečio etapo statybos Jotvingių g.
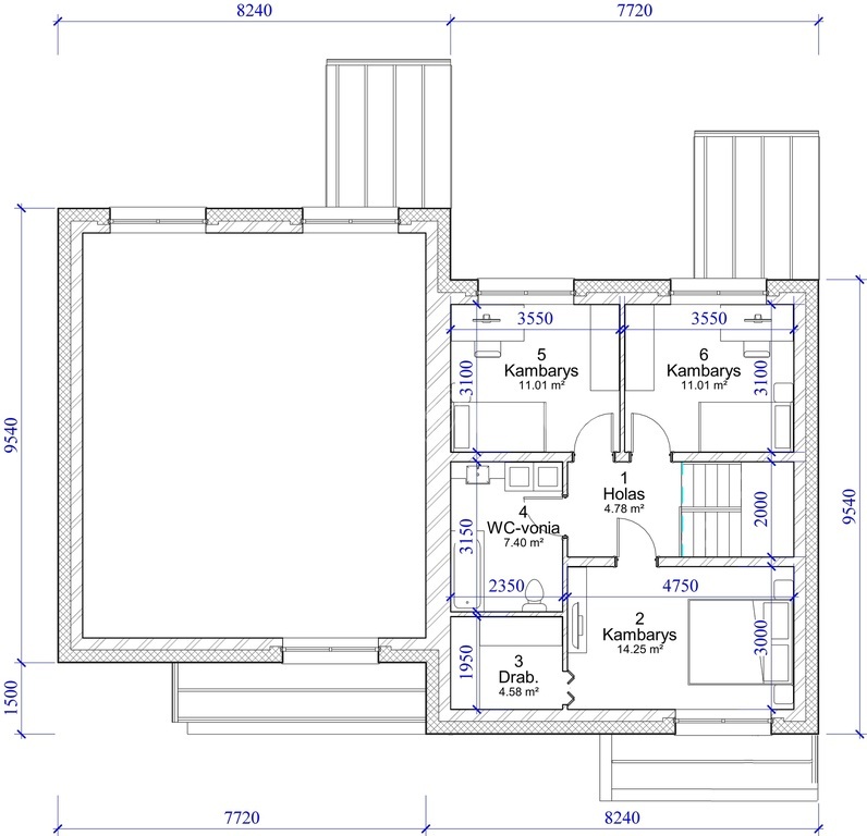
Parduodamas trečias (paskutinis) 2026 metų statybos sublokuotas dvipusis kotedžas Jotvingių g., energetinė klasė A++. Rami, žaluma apsupta vieta, atsiribojusi nuo miesto triukšmo, susiformavusiame gyvenamųjų namų kvartale, iki asfalto apie 200 m, šalia praeina dujų trąsa. Akligatvis, kuris suteikia papildomai privatumo, kotedžas stovi toliau nuo pagrindinės gatvės. Apie vieno kilometro atstumu yra mokykla, vaikų ugdymo įstaigos, prekybos centrai Akropolis, Rimi. Geras susisiekimas su kitais miesto rajonais. Į sklypą atvestos miesto komunikacijos: elektra, vanduo, kanalizacija. Kiekvienas kotedžas turės savo numatytą parkavimosi aikštelę, virš kurios bus galima įsirengti stoginę. Stogo konstrukcija sumontuota taip, kad pietinio šlaito pusėje galima būtų montuoti saulės jėgainę. Kotedžo baigtumas 85 proc. Statybų pabaiga numatoma 2026 metų birželio mėnesį. Esant poreikiui galima antro aukšto 3 k. perplanuoti į 4 kambarius, taip pat galimi antro aukšto sienų perplanavimo darbai pagal poreikius.
Galima išankstinė kotedžo rezervacija.

BENDRA INFORMACIJA:
• Bendras kotedžo plotas 114,91 m²;
• Žemės sklypas 4,80 a;
• Baigtumas 85 proc.;
• Energetinė klasė A++;
• Kambarių skaičius: 4;
• Aukštų skaičius: du aukštai;
• Miesto vanduo, kanalizacija;

APDAILA IR ĮRENGIMAS:
• Į namą atvesti ir išvedžioti vandentiekio, kanalizacijos įvadai, pajungti prie miesto tinklų;
• Pastatytas šilumos paskirstymo kolektorius (bazinis variantas);
• Išvedžiota elektros instaliacija; pastatyta elektros paskirstymo dėžutė (bazinė);
• Sumontuota rekuperacinė sistema;
• Pamatai: gręžtiniai, apšiltinti iš abiejų pusių pagal projektą;
• Sienos: 25 cm dujų silikato blokeliai, apšiltinti 25 cm neoporu;
• Fasado apdaila- dekoratyvinis tinkas;
• Stogas- profiliuotos skardos lakštai;
• Perdanga: apšiltinta 45 cm akmens vata;
• Langai: plastikiniai langai, atitinkantys A++ klasę;
• Išorinės durys - plastiko;
• Grindys: išvedžiotas grindinis šildymas, išbetonuotos grindys;
• Laiptai: gelžbetoninių laiptų konstrukcija;
• Vidaus sienos: tinkuotos;

APLINKA:
• Sutvarkytas gerbūvis: išklotos betoninės trinkelės, išlygintas sklypas, pasėta žolė, aptverta segmentinė tvora teritorija;
• Terasa: betoninio pagrindo;
• Lauko sandėliukas (mūrinis);

Domitės būstu, tačiau nežinote nuo ko pradėti? Skambinkite, padėsime išspręsti jūsų rūpesčius. Galima rezervacija.
Daugiau info tel: +37063827509

Panašūs objektai

Visi objektai Visi
+
Būtinieji
Šie slapukai yra būtini, kad veiktų svetainė, mūsų sistemose negali būti išjungti.
Funkciniai
Šie slapukai suteikia galimybę pagerinti funkcionalumą ir suasmeninimą, pavyzdžiui, jie pagerina pateikiamo turinio formatą ir formą, nustato šrifto dydį ar svetainės elementų pozicijas. Jie gali būti įdiegti mūsų arba kitų tiekėjų, kurie teikia į mūsų puslapius įdėtas paslaugas. Jei neleisite šiems slapukams veikti, kai kurios ar visos minėtos funkcijos negalės tinkamai veikti. Funkciniai slapukai šiuo metu nenaudojami.
Statistiniai
Šie slapukai leidžia mums skaičiuoti apsilankymus ir lankytojų srauto šaltinius, kad galėtume matuoti ir gerinti svetainės veikimą. Pvz., pateikti skaitomiausią turinį pagal rubrikas, kategorijas. Visa šių slapukų informacija yra apibendrinta, todėl anoniminė. Jei neleisite šiems slapukams veikti, nežinosime, kad lankėtės mūsų puslapyje. Statistiniai slapukai šiuo metu nenaudojami.
Reklaminiai
Šiuos slapukus per mūsų svetainę naudoja mūsų reklamos partneriai. Tos bendrovės gali juos naudoti jūsų interesų profiliui formuoti ir jums tinkamoms reklamoms kitose svetainėse parinkti. Jie veikia unikaliai identifikuodami jūsų naršyklę ir įrenginį. Jei neleisite šiems slapukams veikti, įvairiose kitose svetainėse nematysite mūsų tikslingai Jums skirtų pasiūlymų. Reklaminiai slapukai šiuo metu nenaudojami.
Sutinku su visais Nesutinku su visais

Mail sent!