Back to search

Palangos m. sav., Palanga, Vanagupės g.

Apartment for sale

Palangos m. sav., Palanga, Vanagupės g.

Apartment for sale

165 000
5 000 per m²

About this property

The apartment (for recreation) is located on a street with low traffic intensity, 1 km from the Baltic Sea beach.
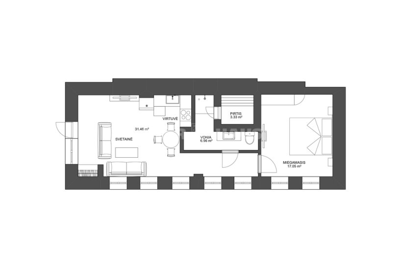
The apartment is distinguished by a spacious living room and kitchen area. From here you can enter the terrace on the west side of the house - it will be a great place to enjoy a coffee or a book. The apartment also has a partially separated bedroom area, a bathroom and a corridor with a wardrobe, which will help you maintain order. The interior features high-quality materials and furniture, and large windows ensure constant light and coziness. Comfort and privacy are provided by a separate entrance to the room directly from the yard. There is a parking space at the entrance to the premises, sold for an additional price of 15,000 EUR.
This is a great choice for those who value peace, nature and a quality living and recreation environment.

ADVANTAGES
● Valuable location in the city, next to the forest, only a 10-minute walk to the sea beach;
● A+ energy efficiency class, low costs for heating the room;
● Large windows, sunny apartments;
● Terrace;
● Newly equipped room a year ago;
● Separate entrance;
● Possibility to purchase a parking space at the apartment door.

GENERAL INFORMATION
● Area: 33 sq. m;
● Number of rooms: 1 (with a bedroom area);
● Floor: 1/5;
● Heating: centralized city, adjustable;
● Floor: laminate;
● Walls: painted;
● Exterior doors: armored;
● Terrace.

HOUSE INFORMATION
● Year of construction: 2023;
● House type: brick;
● Closed parking lot of the house;
● Possibility to purchase a parking space.

Similar objects

All objects All
+
Mandatory
Mandatory cookies help make a website usable by enabling basic functions like page navigation and access to secure areas of the website. The website cannot function properly without these cookies.
Functional
Functional cookies enable a website to remember information that changes the way the website behaves or looks, like your preferred language or the region that you are in. Functional cookies are currently unused.
Statistical
Statistical cookies help website owners to understand how visitors interact with websites by collecting and reporting information anonymously. Statistical cookies are currently unused.
Advertising
Marketing cookies are used to track visitors across websites. The intention is to display ads that are relevant and engaging for the individual user and thereby more valuable for publishers and third party advertisers.
Allow all Deny All

Mail sent!