Back to search

Kaišiadorių r. sav., Rumšiškių mstl., Rumšos g.

Commercial space for sale

Kaišiadorių r. sav., Rumšiškių mstl., Rumšos g.

Commercial space for sale

305 000
258 per m²

About this property

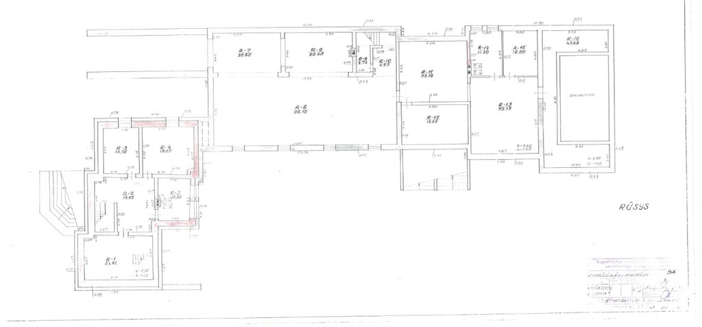
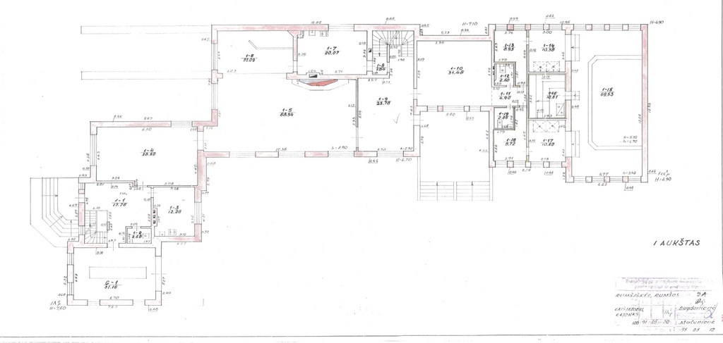
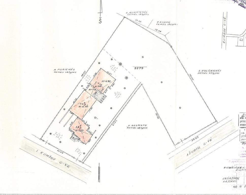
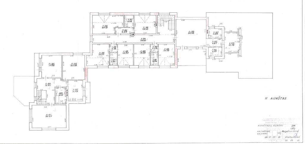
A hotel-bar is for sale in the town of Rumšiškės. The layout allows for flexible adjustment/division of the building into apartments, b2b accommodation, retirement homes and other public facilities. Convenient location - next to the A1 highway. ~20min to Kaunas, ~45min to Vilnius. Public transport also runs. A cozy expanding town with prospects. ADVANTAGES • Residential purpose; • 30.66a residential plot managed by property law; • The territory is fenced with a high brick fence with automatic gates and paved cobblestones; • Tennis court installed; ENGINEERING PART Water supply - municipal + 2 exploited wells + water filtration system; Sewage - municipal; Electricity - 2 inputs (total power potential - 200 kW); Heating - 2 solid fuel boilers + 2 gas boilers; There is an opportunity to purchase an adjacent residential plot of 22.79a. More information by phone or during an inspection.

+
Mandatory
Mandatory cookies help make a website usable by enabling basic functions like page navigation and access to secure areas of the website. The website cannot function properly without these cookies.
Functional
Functional cookies enable a website to remember information that changes the way the website behaves or looks, like your preferred language or the region that you are in. Functional cookies are currently unused.
Statistical
Statistical cookies help website owners to understand how visitors interact with websites by collecting and reporting information anonymously. Statistical cookies are currently unused.
Advertising
Marketing cookies are used to track visitors across websites. The intention is to display ads that are relevant and engaging for the individual user and thereby more valuable for publishers and third party advertisers.
Allow all Deny All

Mail sent!