Back to search

Kauno m. sav., Kauno m., Maironio g.

Commercial space for rent

Kauno m. sav., Kauno m., Maironio g.

Commercial space for rent

550
7,11 per m²

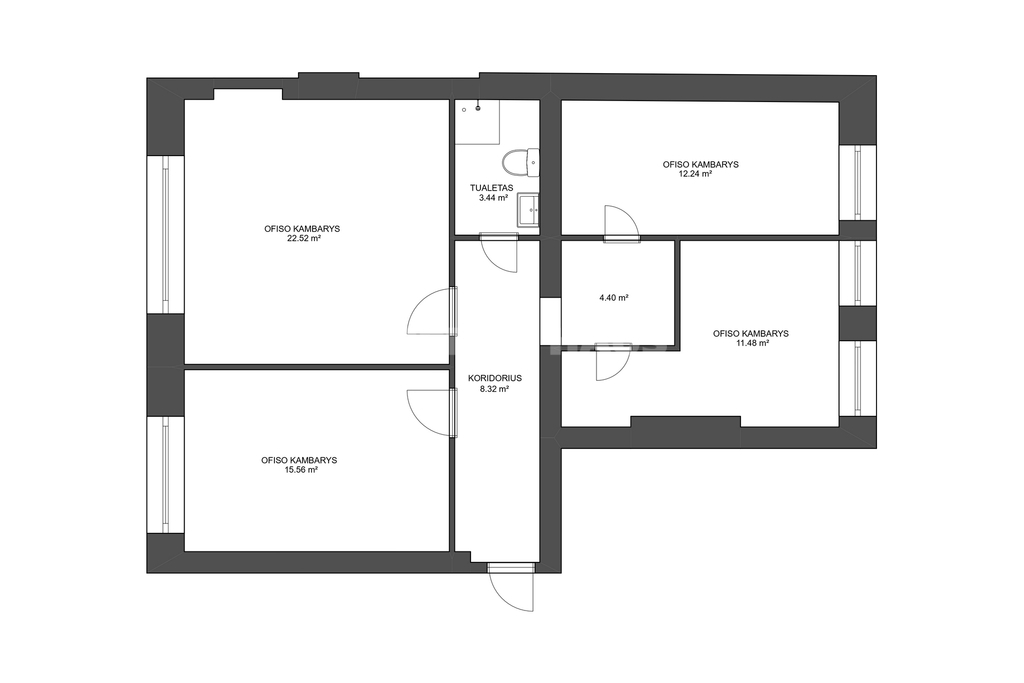
About this property

SPACIOUS PREMISES FOR RENT (4 separate offices) IN KAUNAS CITY CENTER, MAIRONIO STREET. Neat, commercial premises for rent in the very center of Kaunas - Maironio St., where you can enjoy a great location while working. ADVANTAGES: • Spacious and warm premises provide the opportunity to carry out various activities; • The premises are strategically located, because the city center is a very attractive place; • Economical heating costs; • The premises are equipped with high-speed internet, thanks to which you will have the opportunity to perform various works and activities more efficiently; • The premises have 4 impassable offices, which will make work more productive and confidentiality will be ensured; • A spacious lounge with a wardrobe. • A neat and spacious toilet room is equipped in the premises; • An alarm system is installed in the premises - to ensure your safety. • The premises are neat, renovated, and do not require additional investments. GENERAL INFORMATION: • Building type: brick; • Year of construction: 1935; • Total area of premises: 77.36 m²; • Heating: central; • Floors: 1/3; • Number of rooms: 4. INFRASTRUCTURE: • Good connections with all districts of the city, near a public transport stop; • Within easy reach of Laisvės aleja, shops, cafes; • Next to the PC "Akropolis"; • Also right next to the newly renovated Nemunas island. RENTAL PRICE - 550 EUR + VAT DEPOSIT IS TAKEN FOR 2 MONTHS.

+
Mandatory
Mandatory cookies help make a website usable by enabling basic functions like page navigation and access to secure areas of the website. The website cannot function properly without these cookies.
Functional
Functional cookies enable a website to remember information that changes the way the website behaves or looks, like your preferred language or the region that you are in. Functional cookies are currently unused.
Statistical
Statistical cookies help website owners to understand how visitors interact with websites by collecting and reporting information anonymously. Statistical cookies are currently unused.
Advertising
Marketing cookies are used to track visitors across websites. The intention is to display ads that are relevant and engaging for the individual user and thereby more valuable for publishers and third party advertisers.
Allow all Deny All

Mail sent!