Atgal į paiešką

Vilniaus m. sav., Antakalnis, P. Vileišio g.

Parduodamos komercinės patalpos

Vilniaus m. sav., Antakalnis, P. Vileišio g.

Parduodamos komercinės patalpos

161 500
1 801 už m²

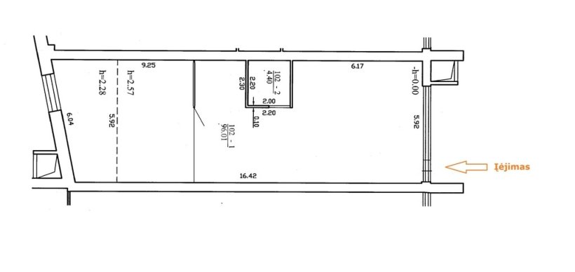
Apie šį turtą

Antakalnyje, puikioje vietoje, šalia Neries krantinės, parduodamos gamybinės paskirties patalpos.

Patalpos yra antrame pastato aukšte, langai orientuoti į P. Vileišio g. su vaizdu į Nerį. Jos turi du atskirus įėjimus, padalintos į dvi atskiros erdvės, turi du san. mazgus. Patalpos lengvai transformuojamos į du atskirus butus, reikalingas remontas.

Puikus susisiekimas su miestu, tiek viešoju transportu, tiek automobiliu ar dviračiu. Iki Senamiesčio apie 10-15 min. pėsčiomis. Labai patogus privažiavimas prie pastato, erdvi nemokama stovėjimo aikštelė.
Šalia pastato naujai sutvarkyti pasivaikščiojimo ir dviračių takai.

Pardavimo kaina - 161500 €

Panašūs objektai

Visi objektai Visi
+
Būtinieji
Šie slapukai yra būtini, kad veiktų svetainė, mūsų sistemose negali būti išjungti.
Funkciniai
Šie slapukai suteikia galimybę pagerinti funkcionalumą ir suasmeninimą, pavyzdžiui, jie pagerina pateikiamo turinio formatą ir formą, nustato šrifto dydį ar svetainės elementų pozicijas. Jie gali būti įdiegti mūsų arba kitų tiekėjų, kurie teikia į mūsų puslapius įdėtas paslaugas. Jei neleisite šiems slapukams veikti, kai kurios ar visos minėtos funkcijos negalės tinkamai veikti. Funkciniai slapukai šiuo metu nenaudojami.
Statistiniai
Šie slapukai leidžia mums skaičiuoti apsilankymus ir lankytojų srauto šaltinius, kad galėtume matuoti ir gerinti svetainės veikimą. Pvz., pateikti skaitomiausią turinį pagal rubrikas, kategorijas. Visa šių slapukų informacija yra apibendrinta, todėl anoniminė. Jei neleisite šiems slapukams veikti, nežinosime, kad lankėtės mūsų puslapyje. Statistiniai slapukai šiuo metu nenaudojami.
Reklaminiai
Šiuos slapukus per mūsų svetainę naudoja mūsų reklamos partneriai. Tos bendrovės gali juos naudoti jūsų interesų profiliui formuoti ir jums tinkamoms reklamoms kitose svetainėse parinkti. Jie veikia unikaliai identifikuodami jūsų naršyklę ir įrenginį. Jei neleisite šiems slapukams veikti, įvairiose kitose svetainėse nematysite mūsų tikslingai Jums skirtų pasiūlymų. Reklaminiai slapukai šiuo metu nenaudojami.
Sutinku su visais Nesutinku su visais

Mail sent!