Atgal į paiešką

Vilniaus m. sav., Naujamiestis, Vytenio g.

Nuomojamos komercinės patalpos

Vilniaus m. sav., Naujamiestis, Vytenio g.

Nuomojamos komercinės patalpos

1 660
10,00 už m²

Apie šį turtą

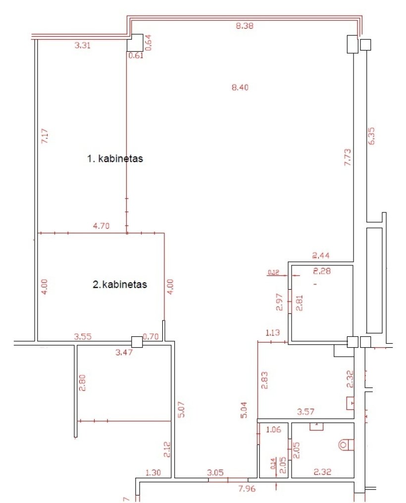
Išnuomojamos 166,09 m² biuro patalpos Vytenio g., Naujamiestyje. Patalpos įsikūrusios naujo verslo centro trečiame aukšte.
Pastate įrengtos modernios kondicionavimo ir rekuperacinės vėdinimo sistemos, apsaugos ir stebėjimo sistemos, šviesolaidinis internetas, centrinis kolektorinis šildymas.

Patalpas sudaro 1 didelė darbo erdvė ir 1 atskirа darbo kabinetas, virtuvėlės zona ir sanitarinis mazgas. Patekimas į patalpas galimas tiek iš fasadinės pastato pusės, tiek iš vidinio kiemo. Taip pat suteikiama viena rezervuota parkavimo vieta šalia pastato esančioje aikštelėje.

Nuomos kaina – 10,0 €/kv. m + PVM.

Panašūs objektai

Visi objektai Visi
+
Būtinieji
Šie slapukai yra būtini, kad veiktų svetainė, mūsų sistemose negali būti išjungti.
Funkciniai
Šie slapukai suteikia galimybę pagerinti funkcionalumą ir suasmeninimą, pavyzdžiui, jie pagerina pateikiamo turinio formatą ir formą, nustato šrifto dydį ar svetainės elementų pozicijas. Jie gali būti įdiegti mūsų arba kitų tiekėjų, kurie teikia į mūsų puslapius įdėtas paslaugas. Jei neleisite šiems slapukams veikti, kai kurios ar visos minėtos funkcijos negalės tinkamai veikti. Funkciniai slapukai šiuo metu nenaudojami.
Statistiniai
Šie slapukai leidžia mums skaičiuoti apsilankymus ir lankytojų srauto šaltinius, kad galėtume matuoti ir gerinti svetainės veikimą. Pvz., pateikti skaitomiausią turinį pagal rubrikas, kategorijas. Visa šių slapukų informacija yra apibendrinta, todėl anoniminė. Jei neleisite šiems slapukams veikti, nežinosime, kad lankėtės mūsų puslapyje. Statistiniai slapukai šiuo metu nenaudojami.
Reklaminiai
Šiuos slapukus per mūsų svetainę naudoja mūsų reklamos partneriai. Tos bendrovės gali juos naudoti jūsų interesų profiliui formuoti ir jums tinkamoms reklamoms kitose svetainėse parinkti. Jie veikia unikaliai identifikuodami jūsų naršyklę ir įrenginį. Jei neleisite šiems slapukams veikti, įvairiose kitose svetainėse nematysite mūsų tikslingai Jums skirtų pasiūlymų. Reklaminiai slapukai šiuo metu nenaudojami.
Sutinku su visais Nesutinku su visais

Mail sent!