Atgal į paiešką

Šiaulių m. sav., Gubernija, Žemaitės g.

Nuomojamos komercinės patalpos

Šiaulių m. sav., Gubernija, Žemaitės g.

Nuomojamos komercinės patalpos

900
6,00 už m²
  • Objekto tipas
    Nuomojamos komercinės patalpos
  • Pastato tipas
    Biuro patalpos, Paslaugos ir prekyba
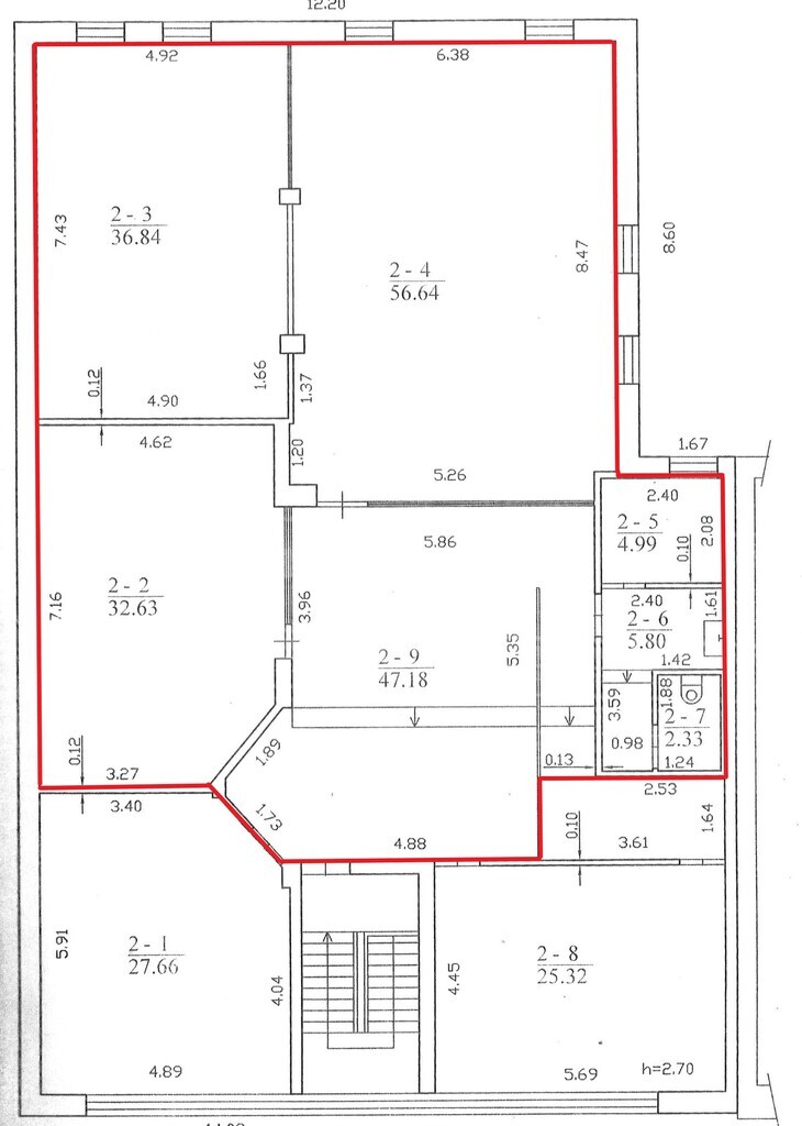
  • Visas plotas
    150.00 m²
  • Aukštas
    2
  • Nuoroda

Apie šį turtą

Išnuomojamos 156 m² puikiai įrengtos administracinės patalpos strategiškai geroje vietoje, Žemaitės gatvėje, Šiauliuose.

BENDRA INFORMACIJA :

* Pastatas šiuolaikiškai įrengtas, maži komunaliniai mokesčiai.
* Patalpose įrengta rekuperacinė vėdinimo sistema, kondicionierius.
* Šildymas grindinis, dujos.
* Šalia patalpų yra bendro naudojamo virtuvėlė, wc.
* Paliekami visi baldai.
* Aplink įsikūrusios įvairia veikla užsiimančios įmonės.
* Labai patogus susisiekimas tiek viešuoju transportu, tiek automobiliu.
* Šalia patalpų automobilių stovėjimo aikštelė.

Susisiekite, dėl Jus dominančių klausimų ir suplanuokime Jums tinkantį laiką apžiūrai: +37069599366.

+
Būtinieji
Šie slapukai yra būtini, kad veiktų svetainė, mūsų sistemose negali būti išjungti.
Funkciniai
Šie slapukai suteikia galimybę pagerinti funkcionalumą ir suasmeninimą, pavyzdžiui, jie pagerina pateikiamo turinio formatą ir formą, nustato šrifto dydį ar svetainės elementų pozicijas. Jie gali būti įdiegti mūsų arba kitų tiekėjų, kurie teikia į mūsų puslapius įdėtas paslaugas. Jei neleisite šiems slapukams veikti, kai kurios ar visos minėtos funkcijos negalės tinkamai veikti. Funkciniai slapukai šiuo metu nenaudojami.
Statistiniai
Šie slapukai leidžia mums skaičiuoti apsilankymus ir lankytojų srauto šaltinius, kad galėtume matuoti ir gerinti svetainės veikimą. Pvz., pateikti skaitomiausią turinį pagal rubrikas, kategorijas. Visa šių slapukų informacija yra apibendrinta, todėl anoniminė. Jei neleisite šiems slapukams veikti, nežinosime, kad lankėtės mūsų puslapyje. Statistiniai slapukai šiuo metu nenaudojami.
Reklaminiai
Šiuos slapukus per mūsų svetainę naudoja mūsų reklamos partneriai. Tos bendrovės gali juos naudoti jūsų interesų profiliui formuoti ir jums tinkamoms reklamoms kitose svetainėse parinkti. Jie veikia unikaliai identifikuodami jūsų naršyklę ir įrenginį. Jei neleisite šiems slapukams veikti, įvairiose kitose svetainėse nematysite mūsų tikslingai Jums skirtų pasiūlymų. Reklaminiai slapukai šiuo metu nenaudojami.
Sutinku su visais Nesutinku su visais

Mail sent!