Вернуться к поиску

Vilniaus m. sav., Vilkpėdė, Naujoji Riovonių g.

Помещения в аренду

Vilniaus m. sav., Vilkpėdė, Naujoji Riovonių g.

Помещения в аренду

1 753 - 5 307
12,00 за m²
  • Тип объекта
    Помещения в аренду
  • Тип здания
    Офисные помещения
  • Общая площадь
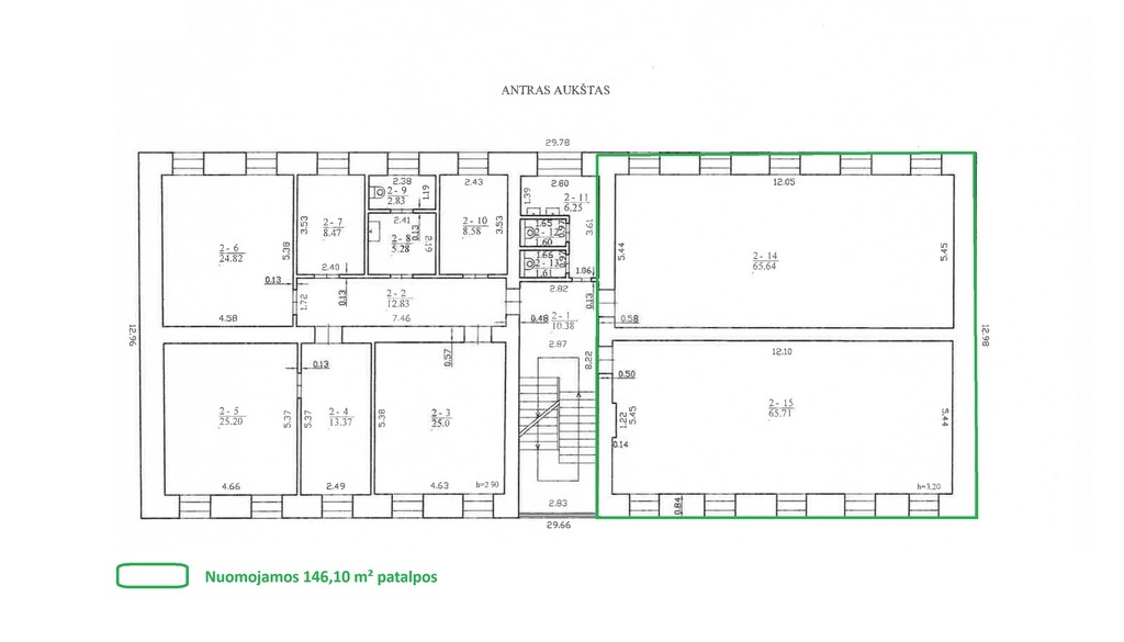
    146.10 - 442.28 m²
  • Высокий
    2
  • Ссылка

Об этом объкте

Сдаются в аренду современные административные помещения в Жемюоси Панери.

Адрес: Naujoji Riovonių g. 25B, Вильнюс
Сдаваемая площадь: 146,10 м²; 296,18 м²; 442,28 м²

Преимущества помещений:

- Удобное расположение: быстрое сообщение со всеми частями города по объездным дорогам. До ближайшей остановки общественного транспорта – всего 400 м.
- Окружающая среда и безопасность: недавно реконструированное здание, ухоженный закрытый двор, территория наблюдается камерами видеонаблюдения. Установлена электронная система доступа, управление воротами двора с помощью мобильного телефона.
- Современное оборудование: рекуперационная система вентиляции и кондиционирования, оптоволоконный интернет, газовое отопление.
- Комфорт работы: современно оборудованные помещения и общие зоны, приспособленные для удобной работы.
- Парковка: рядом со зданием – просторная парковка. Возможность арендовать до 25 парковочных мест (40 €/место + НДС).
- Дополнительные возможности: в подвале можно арендовать помещения для хранения или бытовых нужд (оборудованы душевые, санузел, зона для переодевания).
- Примечание: помещения сдаются без мебели, показанной на фотографиях.

Стоимость аренды: 12,00 €/м² + НДС

Для получения более подробной информации и осмотра просьба обращаться напрямую.

Похожие объекты

Все объекты Все
+
Обязательные
Эти cookies необходимы для работы сайта и не могут быть отключены в наших системах.
Функциональные
Эти cookies позволяют улучшить функциональность и персонализацию, например, улучшить формат и форму предоставляемого контента, настроить размер шрифта или положение элементов сайта. Они могут быть установлены нами или другими поставщиками, которые предоставляют услуги, встроенные в наши страницы. Если вы не разрешите использование этих cookies, некоторые или все вышеупомянутые функции могут не работать должным образом. В настоящее время функциональные cookies не используются.
Статистические
Эти cookies позволяют нам подсчитывать посещения и источники трафика, чтобы мы могли измерять и улучшать производительность сайта. Например, предоставлять самый читаемый контент по рубрикам, категориям. Вся информация из этих cookies является обобщенной, а значит анонимной. Если вы не разрешите использование этих cookies, мы не будем знать, что вы посетили наш сайт. В настоящее время статистические cookies не используются.
Рекламные
Эти cookies используются нашими рекламными партнерами через наш сайт. Эти компании могут использовать их для формирования вашего профиля интересов и подбора рекламы, подходящей для вас на других сайтах. Они работают, уникально идентифицируя ваш браузер и устройство. Если вы не разрешите использование этих cookies, вы не будете видеть наши целевые предложения на других сайтах. В настоящее время рекламные cookies не используются.
Принять все Я не согласен

Mail sent!