Вернуться к поиску

Kauno r. sav., Raudondvario k., Pakalnės g.

Помещения в аренду

Kauno r. sav., Raudondvario k., Pakalnės g.

Помещения в аренду

9 200
6,57 за m²
  • Тип объекта
    Помещения в аренду
  • Тип здания
    Промышленные, Офисные помещения
  • Общая площадь
    1400.00 m²
  • Высокий
    1
  • Ссылка

Об этом объкте

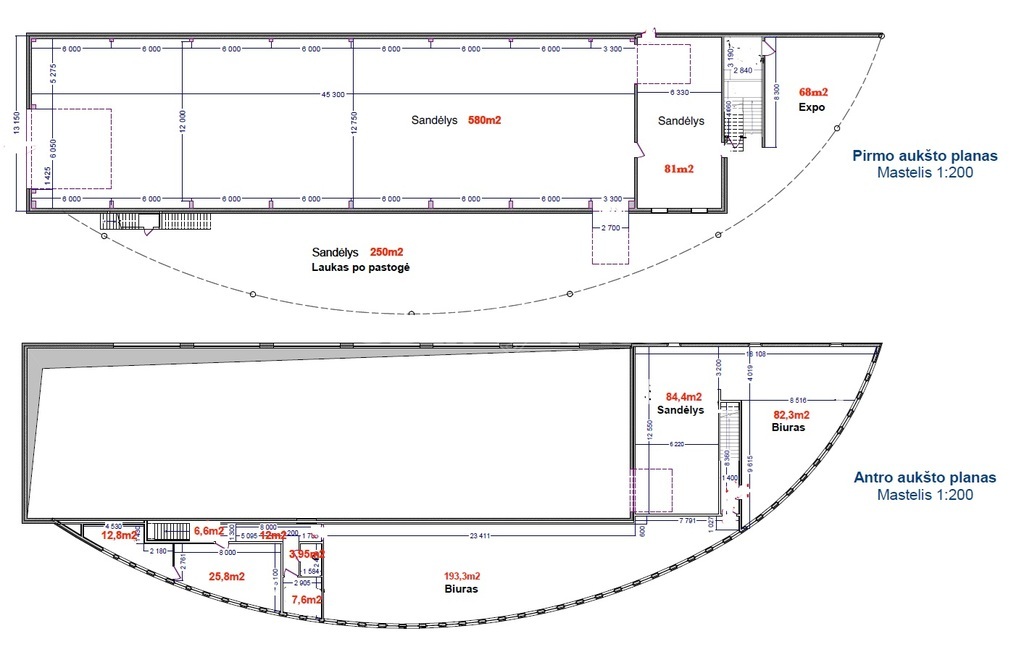
Эксклюзивное промышленное здание с офисными помещениями в аренду, сочетающее в себе архитектурные решения и установленные технологии. ПРЕИМУЩЕСТВА: • Новое здание класса А++, находящееся в стадии строительства; • Большое внимание уделено экологичным материалам; • Просторный участок площадью 30 акров, который будет вымощен брусчаткой; • Установлены интеллектуальные технологии здания; • Автоматические въездные ворота, система безопасности, камеры видеонаблюдения, отопление, вентиляция, освещение – все это управляется дистанционно; • Солнечная электростанция, полностью обеспечивающая здание электроэнергией, мощностью 30 кВт, потребляемой мощностью 35 кВт; • Высокие потолки в производственной части – 7,5 м; • Подъемник Telfer, грузоподъемность – 3,2 т; • Подъемные ворота 6,0 м x 6,0 м; • Фасадная оконная система с 3 окнами с двойным остеклением; • Фасад облицован канадским кедром и бетонными панелями Koderus; • Интерьер офиса – отделка канадским кедром, микроцементный пол, качественная мебель; ТЕХНИЧЕСКИЕ ХАРАКТЕРИСТИКИ • Отопление - пол (тепловой насос) + система "воздух-воздух" (в административной части); • Рекуперация тепла - в административной части; • Водоснабжение - централизованное (Giraites vandenys); • Водоотведение - централизованное (Giraites vandenys) + местная очистная станция; ПЛАНИРОВКА 1-й этаж: Открытое складское помещение под крышей - 250 м² Отапливаемая производственная часть - 661 м² Вестибюль/выставочная зона - 68 м² 2-й этаж: Открытое офисное пространство/шкафы - 262 м² Отдельное помещение, пригодное для офиса/отдыха - 82,3 м² Кладовая 84,4 м² Дополнительная информация - по телефону или во время осмотра.

+
Обязательные
Эти cookies необходимы для работы сайта и не могут быть отключены в наших системах.
Функциональные
Эти cookies позволяют улучшить функциональность и персонализацию, например, улучшить формат и форму предоставляемого контента, настроить размер шрифта или положение элементов сайта. Они могут быть установлены нами или другими поставщиками, которые предоставляют услуги, встроенные в наши страницы. Если вы не разрешите использование этих cookies, некоторые или все вышеупомянутые функции могут не работать должным образом. В настоящее время функциональные cookies не используются.
Статистические
Эти cookies позволяют нам подсчитывать посещения и источники трафика, чтобы мы могли измерять и улучшать производительность сайта. Например, предоставлять самый читаемый контент по рубрикам, категориям. Вся информация из этих cookies является обобщенной, а значит анонимной. Если вы не разрешите использование этих cookies, мы не будем знать, что вы посетили наш сайт. В настоящее время статистические cookies не используются.
Рекламные
Эти cookies используются нашими рекламными партнерами через наш сайт. Эти компании могут использовать их для формирования вашего профиля интересов и подбора рекламы, подходящей для вас на других сайтах. Они работают, уникально идентифицируя ваш браузер и устройство. Если вы не разрешите использование этих cookies, вы не будете видеть наши целевые предложения на других сайтах. В настоящее время рекламные cookies не используются.
Принять все Я не согласен

Mail sent!